Détails de l'offre
26 terrains à bâtir proposés sur la commune de Givry, dans le lotissement « Domaine François Bulle ». Ce projet bénéficie d’un emplacement privilégié, à proximité immédiate des écoles, des commerces et des transports en commun.
Caractéristiques :
Environnement calme
Terrains viabilisés
Découvrir les terrains
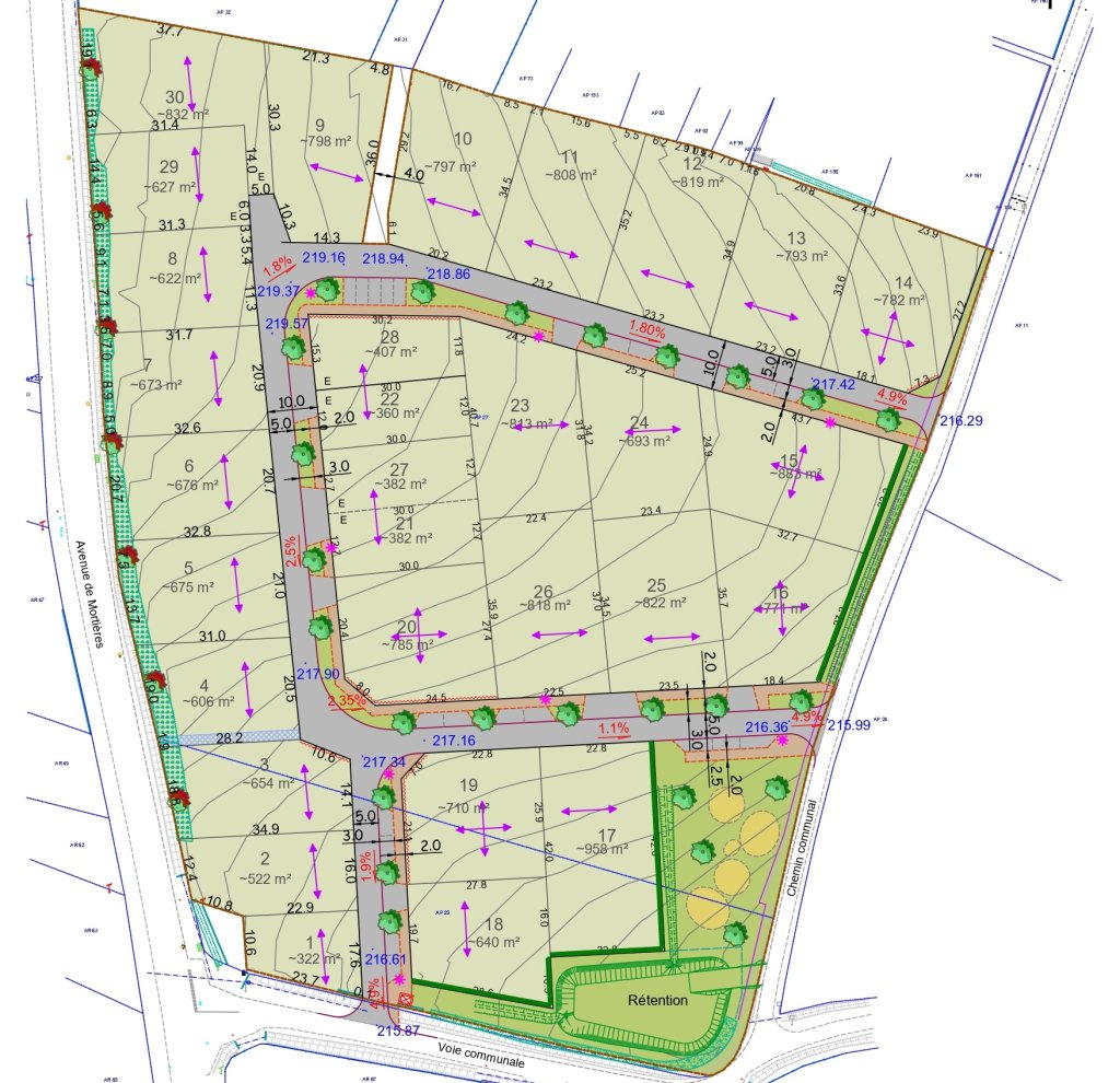
Ce lotissement possède des parcelles d’une superficie comprise entre 600 m² et 950 m². Elles sont idéalement situées, Avenue de Mortières, au sud du village.

Caractéristiques et disponibilité
| LOT | SUPERFICIE DU TERRAIN EN M² | PRIX DE VENTE | DISPONIBILITÉ |
|---|---|---|---|
| 1 | 305 | – | RÉSERVÉ |
| 2 | 517 | 63 640 € | DISPONIBLE |
| 3 | 647 | 79 480 € | DISPONIBLE |
| 4 | 604 | 73 720 € | DISPONIBLE |
| 5 | 675 | 82 000 € | DISPONIBLE |
| 6 | 674 | 82 120 € | DISPONIBLE |
| 7 | 664 | 81 760 € | DISPONIBLE |
| 8 | 621 | – | RÉSERVÉ |
| 9 | 776 | 103 740 € | OPTION |
| 10 | 807 | 104 910 € | DISPONIBLE |
| 11 | 808 | – | RÉSERVÉ |
| 12 | 819 | – | RÉSERVÉ |
| 13 | 793 | – | RÉSERVÉ |
| 14 | 782 | – | RÉSERVÉ |
| 15 | 883 | – | RÉSERVÉ |
| 16 | 771 | – | RÉSERVÉ |
| 17 | 958 | – | RÉSERVÉ |
| 18 | 640 | – | RÉSERVÉ |
| 19 | 710 | 92 300 € | OPTION |
| 20 | 785 | – | RÉSERVÉ |
| 23 | 813 | – | RÉSERVÉ |
| 24 | 693 | – | RÉSERVÉ |
| 25 | 822 | – | RÉSERVÉ |
| 26 | 818 | 106 340 € | DISPONIBLE |
| 29 | 627 | – | RÉSERVÉ |
| 30 | 829 | 100 840 € | DISPONIBLE |
Découvrir la commune de Givry
Givry est un village de caractère niché au cœur de la Côte Chalonnaise. Idéalement située à 10 kilomètres de Chalon-sur-Saône, la commune bénéficie de nombreuses commodités de proximité. Réputée pour ses vins d’exception et son patrimoine architectural unique, comme sa célèbre Halle ronde, Givry propose un cadre de vie complet et familial : établissements scolaires (écoles et collège), commerces, services de santé et vie associative dynamique y sont accessibles au quotidien.
Le village est un point de passage incontournable de la Voie Verte, offrant de magnifiques perspectives de balades à travers les vignes et les forêts environnantes. Son centre-ville animé et ses paysages vallonnés en font l’un des secteurs les plus prisés de la région.
Vous souhaitez faire construire votre maison neuve sur l’un de ces terrains au « Domaine François Bulle » ou sur une parcelle que vous possédez déjà ? Nous vous accompagnons à chaque étape de votre réflexion. Notre équipe est à votre écoute pour concevoir un projet sur mesure, parfaitement adapté à vos besoins.
















