Détails de l'offre
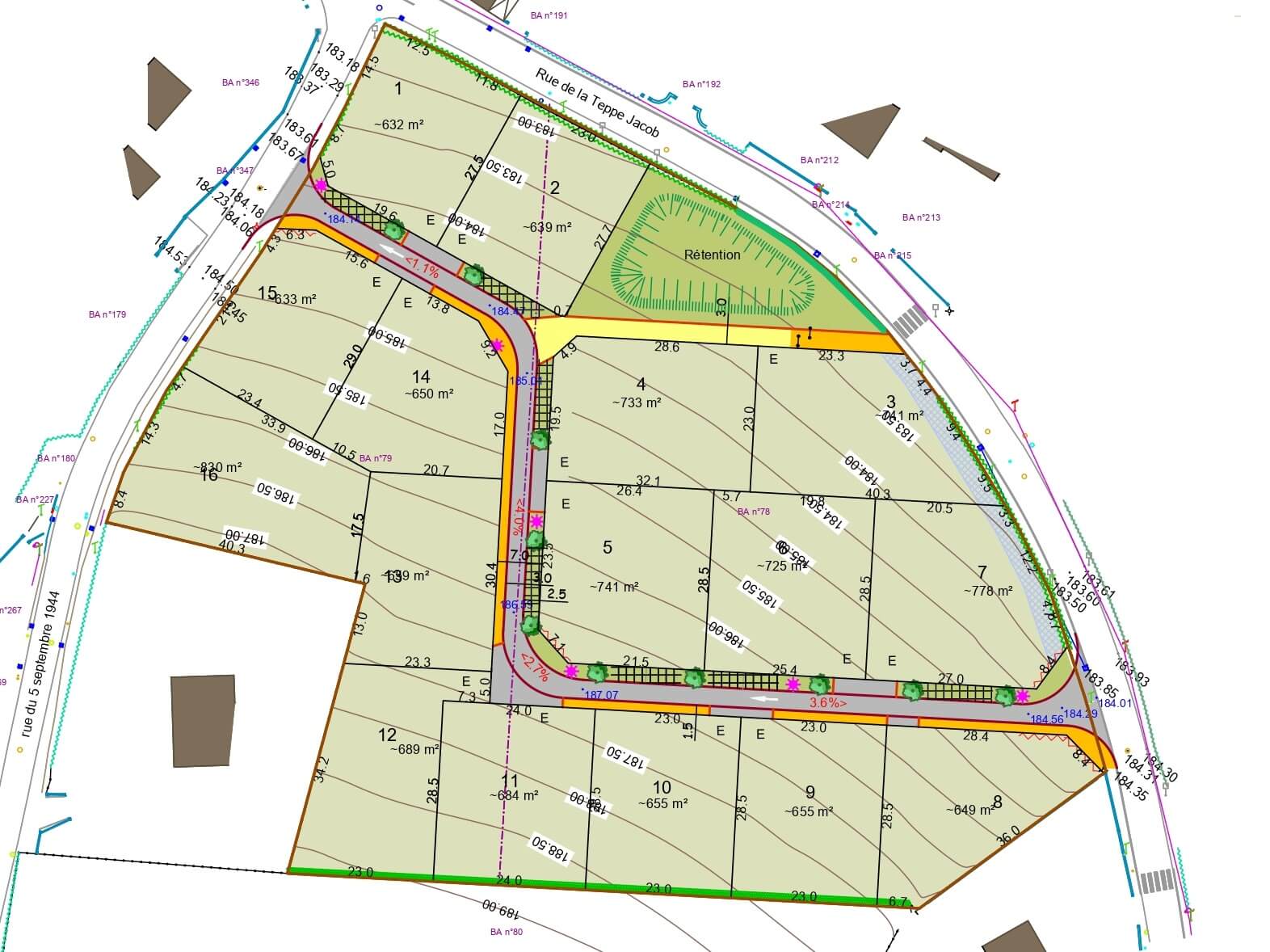
16 terrains constructibles proposés à Cortelin, commune de Saint Rémy, dans le lotissement « Les Coquelicots ».
Caractéristiques :
Terrain viabilisé
Découvrir ces terrains
La superficie de ces terrains est comprise entre 606 m² et 841 m². Le lotissement a été conçu autour d’une rue qui dessert l’ensemble des parcelles. Cet aménagement garantit une circulation limitée et beaucoup de calme aux habitations.

Caractéristiques et disponibilité
| LOT | SUPERFICIE DU TERRAIN EN M² | PRIX DE VENTE | DISPONIBILITÉ |
|---|---|---|---|
| 1 | 634 | 70 270 € | DISPONIBLE |
| 2 | 635 | 70 375 € | DISPONIBLE |
| 3 | 745 | 80 435 € | DISPONIBLE |
| 4 | 733 | 79 199 € | DISPONIBLE |
| 5 | 741 | – | RÉSERVÉ |
| 6 | 725 | 78 375 € | DISPONIBLE |
| 7 | 783 | 82 000 € | DISPONIBLE |
| 8 | 606 | 67 330 € | DISPONIBLE |
| 9 | 644 | – | RÉSERVÉ |
| 10 | 642 | – | RÉSERVÉ |
| 11 | 640 | – | RÉSERVÉ |
| 12 | 656 | – | RÉSERVÉ |
| 13 | 655 | 72 475 € | DISPONIBLE |
| 14 | 650 | 71 950 € | DISPONIBLE |
| 15 | 634 | 70 270 € | DISPONIBLE |
| 16 | 841 | 87 800 € | DISPONIBLE |
En savoir plus sur Cortelin, à Saint-Rémy
Situé sur la commune de Saint-Rémy, Cortelin offre un cadre de vie recherché pour son calme. Ce quartier historique est célèbre pour son château et son parc majestueux, qui apportent une touche de patrimoine et de verdure à l’environnement quotidien. Habiter Cortelin, c’est bénéficier de la tranquillité d’un hameau de caractère tout en profitant des services complets de Saint-Rémy : infrastructures scolaires, équipements sportifs de qualité et une zone commerciale très diversifiée à quelques minutes seulement.
L’atout majeur de Cortelin réside également dans sa connexion immédiate à l’agglomération chalonnaise. Les résidents accèdent rapidement au centre-ville de Chalon-sur-Saône ainsi qu’aux principaux axes autoroutiers (A6), ce qui en fait une adresse stratégique pour les actifs. Entre ses sentiers de promenade et sa proximité avec la Voie Verte, Cortelin séduit pour son dynamisme, au coeur de l’un des secteurs les plus verdoyants et prisés de la couronne de Chalon.
Vous avez pour projet de construction de maison individuelle ? Notre équipe vous accompagne ! Nous mettons notre savoir-faire à votre disposition pour concevoir un projet personnalisé, adapté à la configuration de votre terrain et conforme à vos attentes. Contactez-nous pour une étude détaillée de votre projet.
















